Rif. P183
Como
Como - Centro
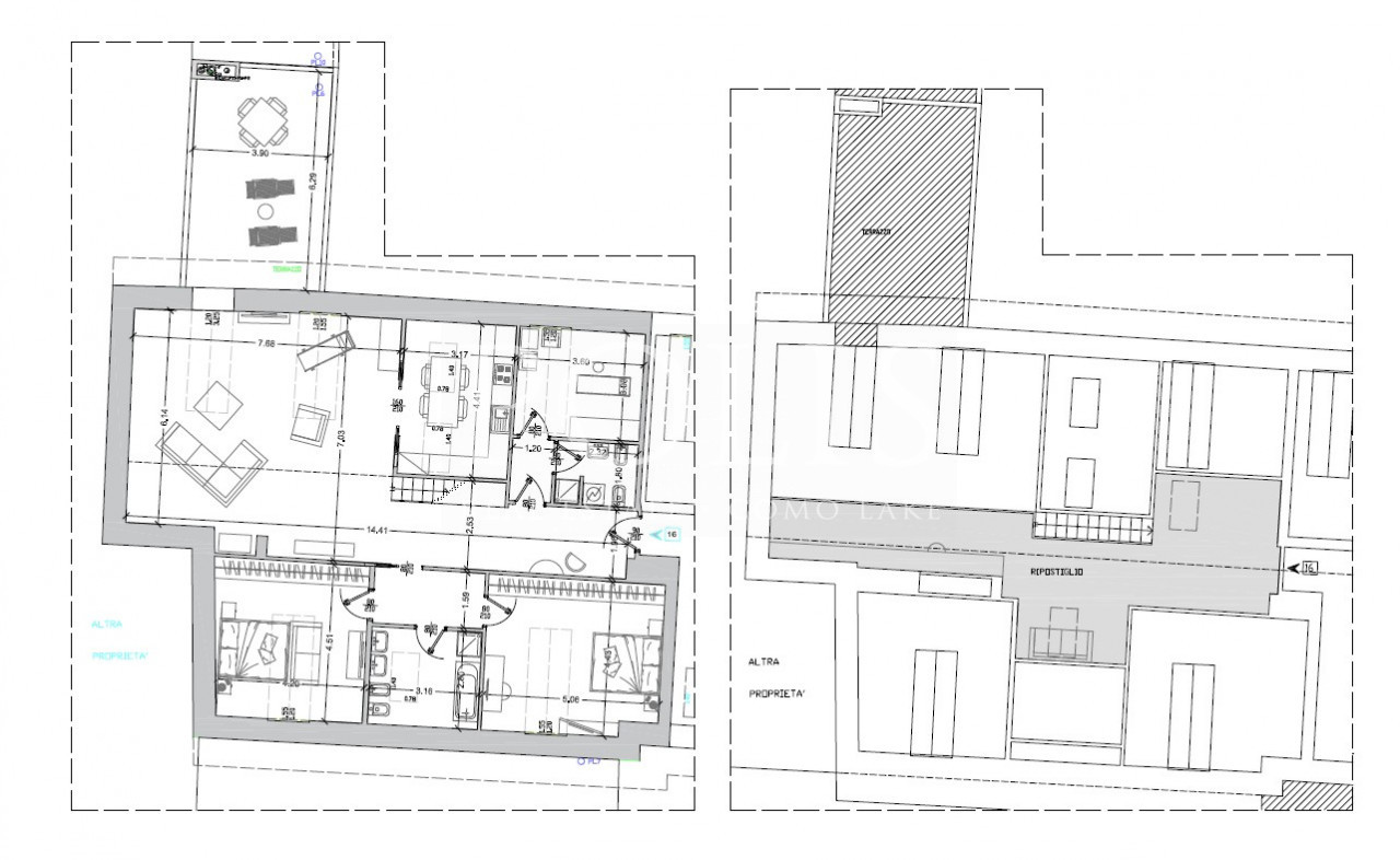
Splendido attico con ampio e ben fruibile terrazzo, posto nel Centro di Como all' interno di un palazzo storico ottimamente ristrutturato, in corte molto tranquilla e silenziosa. Dalle dimensioni generose, l'appartamento gode di una ottima esposizione solare. La distribuzione interna è funzionale e ben studiata. L'abitazione al piano terzo (circa mq. 181) presenta ingresso, ampio e luminoso soggiorno con accesso al terrazzo (circa mq. 24), cucina abitabile, due camere matrimoniali di importanti dimensioni, una camera singola, disimpegni e due bagni. Inoltre, attraverso una elegante scala interna, si raggiunge un ampio e finestrato soppalco (circa mq. 40) da utilizzare quale zona studio/musica/giochi, ecc. Le finiture sono di pregio e gli impianti di alta qualità. L'intero complesso è stato ristrutturato nell' anno 2010, garantendo alti livelli di contenimento energetico. Nel prezzo richiesto è compreso anche un box singolo a poca distanza dal palazzo.
Ottima opportunità per coloro che desiderano vivere nel centro di Como, in un contesto di pregio e di assoluta tranquillità.
Como - Centro
SPLENDIDO ATTICO IN CENTRO COMO CON AMPIO TERRAZZO
€ 1.280.000
196 mq
mq 196
anno di costruzione 2010
ipe 40.88 kWh/m2anno
classe B


















